Chisholm Trail High School Map – Get the inside scoop on how colleges assess your high school and its course rigor. Featuring a former Admissions Officer, you’ll gain crucial insights and actionable strategies during this 60-min . Chisholm Trail Middle School is a public school located in Olathe, KS, which is in a large suburb setting. The student population of Chisholm Trail Middle School is 637 and the school serves 6-8. .
Chisholm Trail High School Map
Source : www.facebook.com
CTHS on X: “NEW parking procedures and traffic flow map available
Source : twitter.com
We will be taking Chisholm Trail High School, EMS ISD | Facebook
Source : www.facebook.com
Chisholm Trail Middle School | Round Rock ISD
Source : roundrockisd.org
Chisholm Trail Middle School / Chisholm Trail Middle School Homepage
Source : www.olatheschools.org
FlipCon Kansas 2015
Source : na.eventscloud.com
Chisholm Trail High School, EMS ISD | Fort Worth TX
Source : www.facebook.com
Texas High School Gymnastics Championships
Source : www.thsgca.org
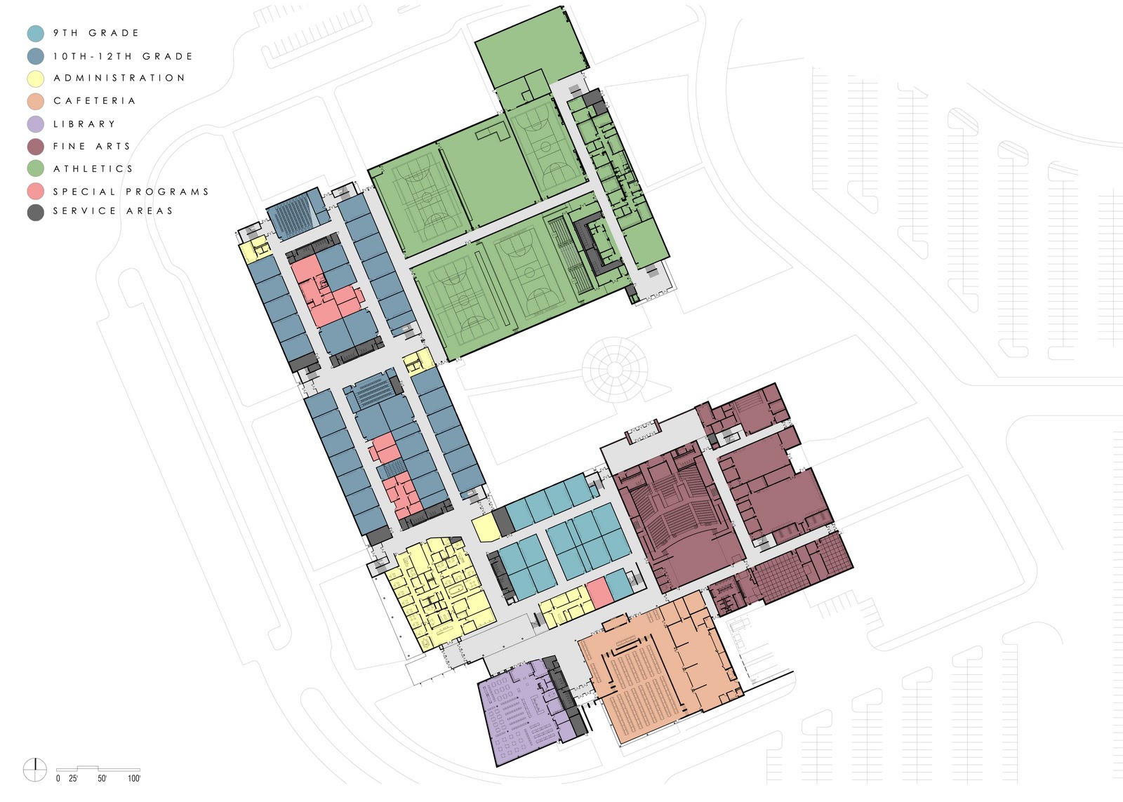
Lee Osborne, AIA, LEED AP: Chisholm Trail High School
Source : losborne-myportfolio.blogspot.com
Take a Quick Survey, and Help Cuero Get a Pocket Park! Chisholm
Source : chisholmtrailmuseum.org
Chisholm Trail High School Map Chisholm Trail High School, EMS ISD Please see the bus and : Fort Worth Chisholm Trail joined the fray Friday and went beat Canyon 31-25 in the Catclaw Classicโs other game Thursday. More: High School Basketball Texas Association of Basketball Coaches . Chisholm Trail went into the final also unbeaten Canyon beat Wylie 46-30. More: High School BasketballTexas Association of Basketball Coaches High School State Rankings, Dec. 4 More: High .






